How to read house plans
What each drawing in a set of plans actually shows, how scale and symbols work, and what Melbourne projects need before a building permit can be issued.
Oct 11, 2025 | Rhys Davies
Table of contents
- What’s in a set of house plans
- How to read a floor plan
- What is a site plan
- Elevation drawings explained
- Section drawings and working drawings
- Single storey vs double storey house plans
- Custom house plans vs standard designs
- House plans and Melbourne building permits
House plans are one of those things that look completely foreign the first time you see them, and then suddenly obvious once someone explains what you’re actually looking at. Whether you’ve just received a set of plans from a building designer, you’re trying to compare custom house designs, or you’re buying a property and wondering what you can build on it, this guide will walk you through what a full set of house plans contains and how to make sense of it all.
The short answer is that a set of house plans is a collection of different drawings, each showing a different aspect of the building. No single drawing tells the whole story. You need all of them together.
What’s in a set of house plans
Most people think of a “house plan” as just a floor plan, but that’s only one piece of a much larger document set. A complete set of plans for a new house in Melbourne will typically include a site plan, floor plans, elevation drawings, section drawings, and depending on the stage of the project, a full set of working drawings for the building permit application.
Each of these serves a different purpose and understanding what each one shows is the key to reading plans properly.
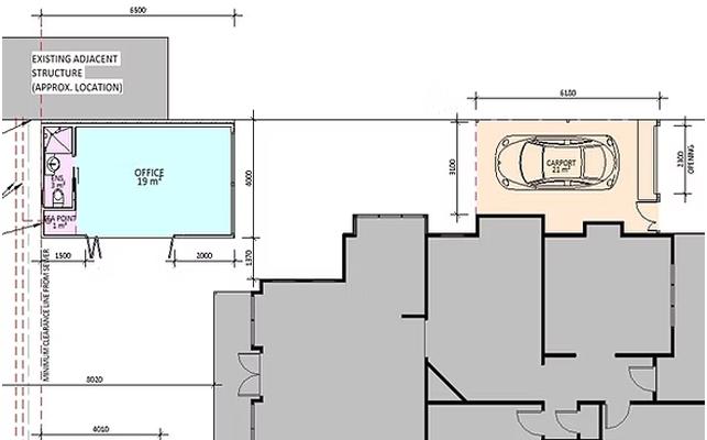
How to read a floor plan
A floor plan is a birds-eye view of the house, drawn as if you sliced through the building at about one metre above floor level and looked down. It shows you the layout of rooms, the location of walls, windows and doors, and how spaces connect to each other.
The first thing most people notice is that it’s drawn to scale, usually 1:100 (where one centimetre on paper equals one metre in real life) or 1:200 for smaller drawings. That scale notation should appear somewhere on the page. Once you understand that, you can start measuring rooms roughly by holding a ruler to the drawing.
Floor plan symbols are consistent across Australian plans. Walls appear as thick parallel lines. Doors are shown with a quarter-circle arc that indicates which way they swing. Windows show as thin lines across the wall thickness. Stairs are drawn as a series of parallel lines with an arrow indicating which direction is up.
Room dimensions are usually written directly on the plan, either as a total room size or as individual wall measurements. A bedroom labelled “3600 x 3000” means it’s 3.6 metres by 3.0 metres. For reference, a comfortable double bedroom is typically around 3.6 x 3.6 metres.
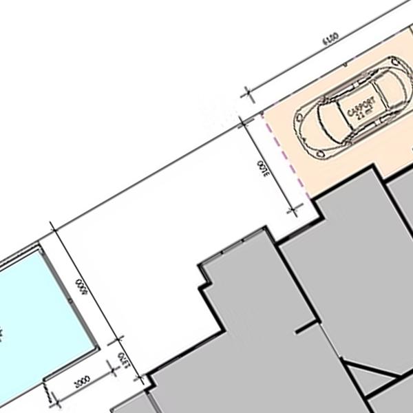
What is a site plan
A site plan shows the house sitting within its block of land. Where the floor plan shows you the internal layout, the site plan shows the relationship between the building and the property boundary. You’ll see setbacks from the front, sides and back, the position of the driveway, crossover, and often things like rainwater tanks, clotheslines and utility areas.
Site plans are particularly important for planning permit applications. Councils and VicSmart applications require you to demonstrate that your building meets the setback requirements in the planning scheme, and the site plan is where that gets documented. If you’re trying to build a new house on a narrow lot, the site plan is often the drawing that reveals whether your design is going to work or not.
Elevation drawings explained
An elevation is a flat, straight-on view of the outside of the building, like a photograph taken from directly in front with no perspective distortion. A standard set of plans will include four elevations, one for each side of the house: front, rear, left and right.
Elevation drawings show you the finished height of the building, the roof pitch, the position and size of windows and doors as seen from the outside, and typically the external materials and finishes. If you’re trying to understand what a house will look like from the street, the front elevation is the drawing to look at.
They’re also the drawings that heritage overlay assessments will scrutinise. In Williamstown and parts of Footscray, for example, what the front elevation looks like and how it responds to the streetscape is one of the things a planning officer will consider when assessing a permit application.
Section drawings and working drawings
A section drawing shows a vertical slice through the building, as if you cut through the house from top to bottom and looked at the cut face. They reveal internal ceiling heights, how floors and roofs are constructed, staircase details, and the relationship between levels in a double storey house.
Working drawings are a different beast entirely. They’re the full technical documentation set produced for a building permit, and they include everything from the structural engineering details to the energy rating assessments, waterproofing notes and construction specifications. A set of working drawings for a new house in Melbourne will typically run to 15 to 25 pages or more, and they’re prepared specifically to satisfy the requirements of a registered building surveyor.
If you’re just trying to understand what your house will look like and how it lays out, the floor plans, site plan and elevations are the drawings you want to spend time on. The working drawings are for your builder and building surveyor.
Single storey vs double storey house plans
This comes up constantly, and the honest answer is that single storey house plans are generally simpler and cheaper to produce, but double storey designs can make much better use of a constrained block. On a narrow lot in Melbourne’s west, where you might be working with a 10- or 12-metre-wide site, a double storey design can give you a four bedroom home with proper living areas where a single storey version would feel cramped or require you to lose all your outdoor space.
The planning implications are also different. A double storey house in a General Residential Zone in Victoria will trigger a review against the ResCode overlooking and overshadowing provisions, whereas a compliant single storey house often doesn’t. That’s something worth understanding before you commit to a design direction.
Custom house plans vs standard designs
Volume builders work from a catalogue of pre-drawn house designs that get modified slightly to suit your block. The plans are largely done before they know anything about your site, and the design process is about fitting a standard product to your circumstances.
Custom house plans are designed from scratch around your specific block, your brief, and your planning requirements. The process takes longer and costs more upfront, but the end result is a design that suits what you’re building on rather than one that’s been shoehorned in.
This matters especially if you’re looking at dual living house plans — a granny flat on the same title, a fully self-contained secondary dwelling, or a design where two generations share a home but with separate entries and living areas. These arrangements are highly site-specific. The setback rules, overlooking requirements, and how the two dwellings relate to each other on the block all need to be resolved in the design before a single line goes on paper. There’s no off-the-shelf version of that.
For anyone building in Melbourne’s western suburbs, the variety in block shapes, orientations, heritage overlays, and covenant restrictions means a custom design approach is often the only way to get a result that genuinely works. There’s no catalogue design that accounts for your specific 9.8 metre wide south-facing block with a vegetation protection overlay.
House plans and Melbourne building permits
In Victoria, you need a building permit before construction can begin, and that permit requires a set of plans that meets specific documentation standards. The plans submitted for a building permit are not the same as the concept drawings you’d use to get a feel for the design. They need to include structural details, energy efficiency calculations, waterproofing specifications, and a range of other technical information. Before a building permit, many projects in Melbourne also require a planning permit from the local council. Planning permits are assessed against the local planning scheme, and they require their own set of drawings, usually at a less technical level than working drawings but still professionally prepared.
House plans and prices is one of the most common questions we get, and the truthful answer is that design fees and construction costs are directly connected to how complex the project is. A straightforward single storey house on a flat rectangular block with no overlays will always be cheaper to design and build than a double storey home on a sloping site with a heritage overlay and a 10 metre width restriction. Understanding your site constraints before you get too far into a design direction will save you from pricing up something that turns out to be the wrong fit.
If you’re planning a new house in Melbourne, understanding which approvals you need and in which order is just as important as understanding the plans themselves. A building designer who knows the western suburbs council processes will be able to tell you upfront whether your project needs a planning permit, roughly how long that will take, and what the design needs to address to give you the best chance of a smooth approval.
Frequently Asked Questions
What is the difference between a planning permit set of drawings and working drawings for a building permit in Victoria?
They are produced for different purposes and assessed by different people, which is why the level of detail is quite different. Planning permit drawings are submitted to the local council and assessed by a planning officer against the planning scheme. They need to show setbacks, site coverage, elevations, and how the design responds to the neighbourhood, but they do not need to include structural engineering details or energy efficiency calculations. Working drawings are the full technical documentation set submitted to a building surveyor for the building permit. They cover everything the planning drawings do not, including structural details, waterproofing specifications, energy ratings, glazing calculations, and construction notes. Both sets are prepared by your building designer, but they are separate documents produced at different stages of the project. If your project requires a planning permit first, the working drawings generally cannot be finalised until planning approval is in hand, because the approved planning drawings set the parameters that the working drawings then document in full technical detail.
Can I use the same set of house plans to get quotes from multiple builders?
Yes, and this is one of the most practical reasons to have a complete set of working drawings before you go to market. When builders are quoting from the same set of detailed drawings and specifications, you are comparing prices for exactly the same scope of work. When they are quoting from a concept design or a rough sketch, each builder makes their own assumptions about materials, structural approach, and inclusions, and the quotes become almost impossible to compare meaningfully. A builder quoting on incomplete documentation will typically include a larger contingency to cover unknowns, which inflates the price, or will exclude items that later become variations during construction. Getting to a fully documented set of working drawings before you seek builder quotes takes longer upfront but almost always produces better pricing outcomes and fewer surprises during the build.
What does a 1:100 scale mean on house plans and how do I use it to measure rooms?
A 1:100 scale means that one unit of measurement on the drawing equals 100 of the same units in reality. So one centimetre on the paper represents one metre on the ground. To measure a room from a 1:100 plan, hold a standard ruler to the drawing and read the measurement in centimetres, then treat that number directly as metres. A room measuring 3.6 centimetres on a 1:100 plan is 3.6 metres wide in real life. Some drawings are printed at 1:200, where one centimetre represents two metres, which is worth checking before you start measuring. The scale notation is always written on the drawing, usually near the title block at the bottom of the page. If the drawing has been printed at a size other than the one it was originally drawn for, the stated scale will no longer be accurate, which is worth being aware of when drawings are printed from A3 originals onto A4 paper.
What information does a building surveyor check in the plans before issuing a building permit in Victoria?
A building surveyor assesses the proposed building work against the National Construction Code, which sets minimum standards for structural adequacy, fire safety, damp and weatherproofing, energy efficiency, and a range of other building performance requirements. For a residential project, the working drawings need to demonstrate that the structure has been engineered to carry the loads it will be subjected to, that the thermal envelope meets the minimum NatHERS energy rating for Victoria, that wet areas are waterproofed correctly, and that glazing specifications meet the relevant Australian Standards. The surveyor also checks that the design is consistent with any planning permit that has been issued, since building work that deviates from approved planning drawings creates a compliance problem. A building surveyor does not assess the aesthetic quality of the design or whether the layout suits your lifestyle. Their role is specifically to confirm that the proposed building meets the regulatory standards before construction begins.
Do house plans need to be prepared by a registered professional in Victoria, or can anyone draw them up?
For any work requiring a building permit in Victoria, the drawings must be prepared or certified by a registered building designer or registered architect. The Victorian Building Authority maintains the register of building designers, and registration is categorised by the type of work the designer is qualified for. Residential building design has its own registration category covering houses, extensions, and secondary dwellings. An unregistered person producing drawings for permitted building work is doing so outside the law, and a building surveyor will not issue a building permit based on documentation that has not been certified by a registered professional. The practical risk beyond the legal one is that unregistered designers carry no professional indemnity insurance, so if the documentation contains errors that cause construction problems or permit delays, there is no insured party to pursue. Checking a designer's BPC registration number before engaging them takes about 30 seconds on the BPC website and removes that risk entirely.
The information provided is for general information purposes only and does not constitute legal, financial, or professional advice. While care has been taken to ensure accuracy, the information may not be complete, current, or applicable to your specific situation. You should always do your own research and, where appropriate, seek advice from a qualified professional before making any decisions based on this information.
Recent Blog Posts
Tell us what you are planning
RD Building Design prepares custom house plans for homeowners across Melbourne's western suburbs, from concept through to building permit. If you are starting a new home, extension, or dual occupancy and want plans designed around your specific block and brief, get in touch to talk through what your project involves.